◇ 서울시의 광화문광장 재구조화 사업과 관련하여, 사업내용에 포함된 정부서울청사 일부 건물 및 부지 포함 문제는 행정안전부(정부청사관리본부)와 합의된 바가 없는 내용임
□ 그간 행정안전부는 서울시 기본계획(안)에 대해 관계기관 회의 등을 통해 동 기본계획(안)의 원안 추진시 정부서울청사 일부 건물 및 부지 침범에 따른 문제를 지적하며, 수용이 곤란하다는 입장을 지속적으로 밝혀왔음
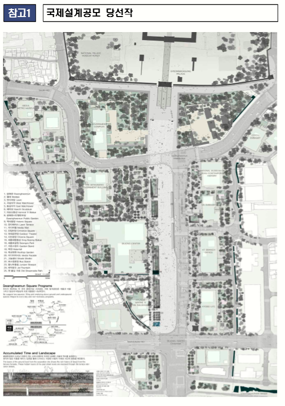
□ 금번 서울시의 국제설계공모 당선작 발표내용에 따르면,
○ 서울청사가 더 이상 공공건물로서 그 기능을 사실상 상실케 됨
- 정문 및 차량 출입구가 폐쇄되고 전면 주차장도 없어지는 문제
- 청사내 순환도로 폐쇄에 따라 청사내 차량순환이 불가능해지는 문제
- 우회도로(6차로)가 조성될 경우, 청사경비대‧방문안내실‧어린이집 등 부속건물 일체를 철거할 수밖에 없어 대체건물 확보 및 방문안내실 이전 문제 등이 발생
○ 그 결과, 청사 건물만 남겨지게 되어 공공건물로서 기본적이고 정상적인 운영 및 관리에 차질이 발생할 수밖에 없음
□ 따라서 행정안전부는 광화문광장 재구조화 사업에 포함된 정부서울청사 부지 포함 문제는 서울시와 정부(정부청사관리본부)간에 합의된 바 없는 내용임을 밝히며,
○ 향후 서울시와 이런 문제 해결을 위해 적극 협의해 나갈 계획임


<저작권자 ⓒ 한국역사문화신문, 무단 전재 및 재배포 금지>
유시문 기자 다른기사보기
